Culmina proyecto Casa de la Cultura Mariquina
Monumento Nacional
Con la presencia del alcalde Rolando Mitre, el director de Desarrollo Comunitario Branco León, la jefa de Gabinete Camila Atencio, representantes de diversas unidades municipales y miembros de la comunidad, se llevó a cabo la actividad de cierre del proyecto “Casa de la Cultura Mariquina – Monumento Nacional”, instancia que marca el término de un proceso histórico para la comuna.
El encuentro, realizado este sábado 18 de octubre a las 18:00 horas en la Casa de la Cultura de San José, se desarrolló luego de la entrega oficial del expediente de solicitud de declaratoria de Monumento Nacional al Consejo de Monumentos Nacionales (CMN), culminando así un año de investigación, trabajo técnico y participación comunitaria impulsado por la Municipalidad de Mariquina a través de su Unidad de Patrimonio Arquitectónico y Monumentos.
La iniciativa, financiada por el Fondo del Patrimonio Cultural 2023 del Servicio Nacional del Patrimonio Cultural, permitió recopilar y sistematizar una amplia base de información histórica, arquitectónica, arqueológica, documental y fotográfica sobre la Casona Exss, edificada a principios del siglo XX.
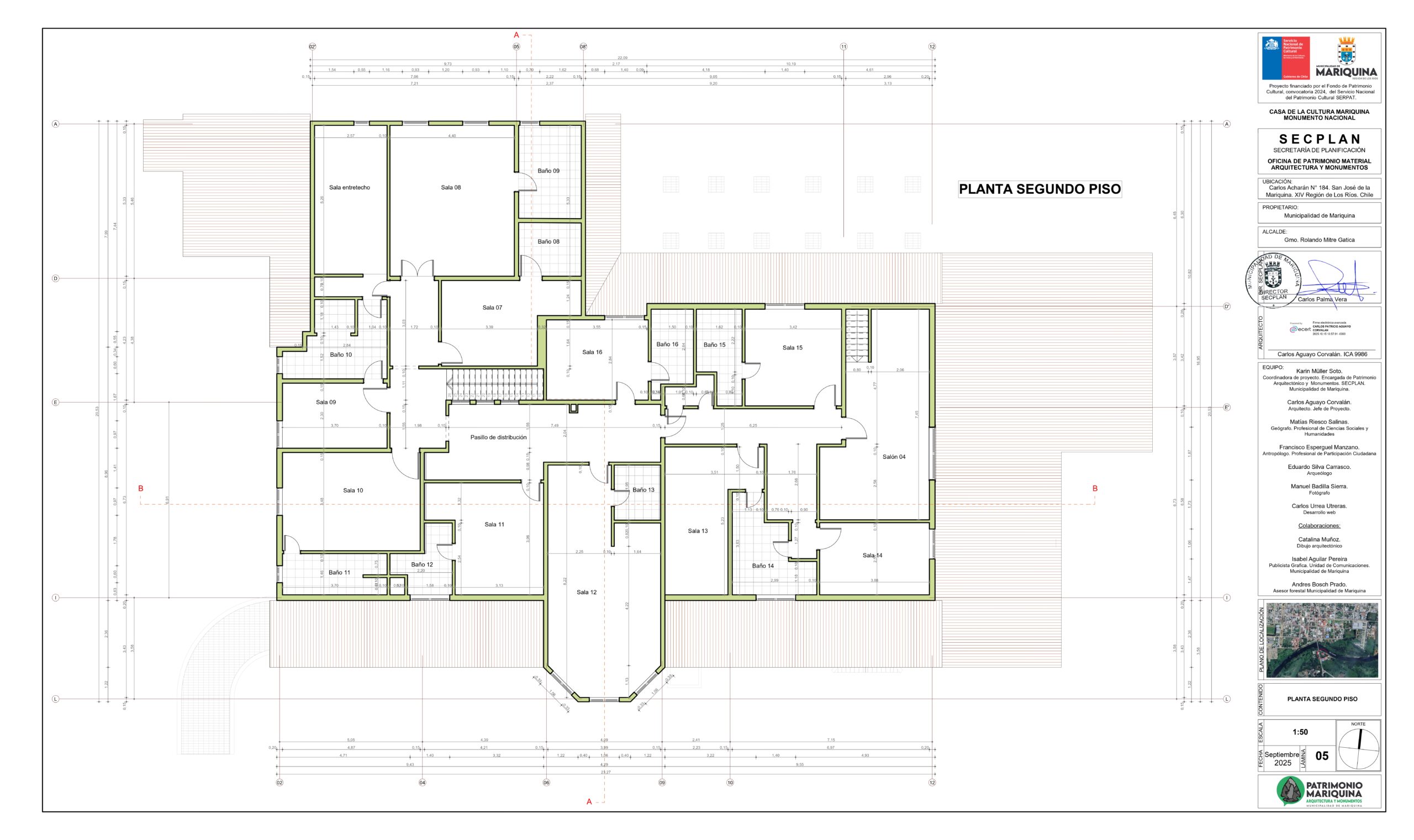
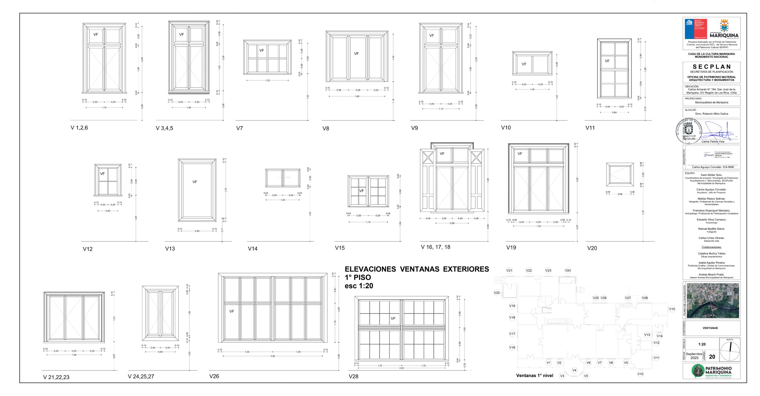
Durante el proceso se realizaron actividades técnicas como el levantamiento arquitectónico y planimétrico del inmueble, el diagnóstico arqueológico, el registro fotográfico de su estado actual, y la investigación histórica y territorial que documenta más de un siglo de transformaciones urbanas, sociales y culturales.
De forma paralela, se desarrolló un programa de participación ciudadana que incluyó talleres comunitarios, encuestas en línea y encuentros presenciales, donde vecinas, vecinos y actores locales compartieron sus recuerdos y valoraciones sobre la casona, reforzando el sentido de pertenencia y el compromiso colectivo con su protección.
La jornada de cierre contempló la exposición pública de los resultados del proyecto, a cargo del equipo técnico de Patrimonio Mariquina, donde se presentaron los principales hitos, hallazgos y el expediente final que será evaluado por el Consejo de Monumentos Nacionales.
Con esta entrega, Mariquina da un paso decisivo en el camino hacia la protección legal de uno de sus bienes más emblemáticos, reafirmando su compromiso con la conservación del patrimonio y la transmisión de su legado a las futuras generaciones.